発電設備に付属する鋼構造物や特殊機械設備の設計を行います。
設計を行うに当たっては法令や基準に関する知識と現場で培われた経験をフルに活かして、現場の地形や環境など条件に応じた最適な設計を行います。
お客様の期待に応える設計を行うためには、知識だけではなく、現地調査で現場周辺の情報をしっかりと集めて把握することが重要です。

FLOW 設計フロー

  • ヒアリング・要件定義

    ◦お客様のニーズや課題を丁寧にヒアリング
    ◦使用環境・安全基準・コスト・納期などの条件を整理

  • 現地調査・技術検討

    ◦設置場所の寸法や周辺環境を確認
    ◦必要な強度・耐久性・機能性を技術的に検討

  • 基本設計(構想設計)

    ◦製作物の全体像を設計(概略図、レイアウト、仕様)
    ◦概略的な強度・剛性の確認し、設計方針を決定

  • 詳細設計(製作図面作成)

    ◦構造計算や部品ごとの寸法・材質・加工方法などを設計
    ◦CADなどを活用して高精度な図面を作成

  • 社内レビュー・お客様確認

    ◦設計内容を社内でチェックし、品質を確保
    ◦お客様と設計内容をすり合わせ

  • 製造部門への引き渡し

    ◦製作図面をもとに、製造部門へ展開
    ◦設計者が製造現場と連携し、技術的支援も実施
     ※同一敷地に設計事務所と製造工場を有しています

  • 設計業務の様子

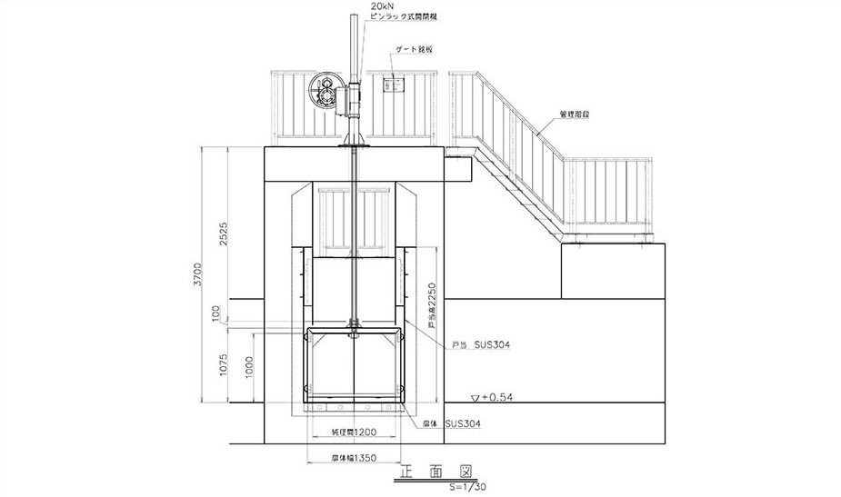
  • 水門の設計図

  • 左図図面水門の完成写真